
重型直線振動篩是雙振動電機驅動。當兩臺振動電機做同步、反缶旋轉時,其偏心塊所產生的激振力在平行于電機軸線的方向相互抵消,在垂直于電機軸的方向疊為一合力,因此篩機的運動軌跡為一直線。兩電機軸相對篩面有一傾角,在激振力和物料自重力的合力作用下,物料在篩面上被拋起跳躍式向前作直線運動,從而達到對物料進行篩選和分級的目的。適用于粒度在0.074-5mm、含水量小于70%、無粘性的各種干式粉狀物料的篩分。最大給料粒度不大于10mm。
重型振動篩的構成:
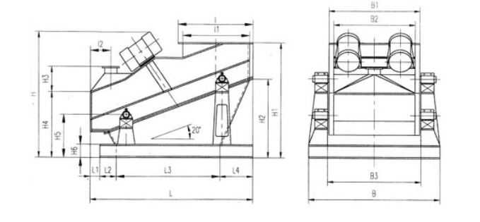
ZSG高效重型篩由振動源、篩體、篩網、減振裝置及底架組成,篩箱由篩框、篩板、襯板組成,篩板側板采用優質鋼板制作而成,側板和橫梁、激振器底座采用高強度螺栓或環槽鉚釘連接,結構合理,堅固耐用。
重型直線篩特點
1、密封性好、極少粉塵溢散。
2、耗能少、噪音低、篩網使用壽命長。
3、篩分精度高、處理量大、結構簡單。
4、全封閉結構、自動排料、更適合于流水線作業。
5、篩體各部分均采用扎制鋼板及型材焊接而成(部分組體間為螺栓連接)整體剛度好,牢固可靠。
重型直線篩型號區分:
敞開型(ZSG-□×□)為座式,無防塵蓋板結構,用于大篩分能力,無粉塵污染的顆料物料的篩分作業。
封閉型(ZSGB-□×□)為座式、全封閉結構,用于大處理量,有粉塵污染的顆粒物料的篩分作業。

重型直線篩適用范圍
重型直線振動篩篩分精度高、處理量大、結構簡單、耗能少、噪音低、篩網使用壽命長、密封性好、極少粉塵溢散、維修方便、可用于流水線生產中的自動化作業。重型直線振動篩廣泛應用于化工、食品、塑料、醫藥、冶金、玻璃、建材、糧食、化肥、磨料、陶瓷等行業中干式粉狀或顆粒狀物料的篩分。

重型直線篩技術參數表:
振動篩廠家家友情提示:請通過正規渠道購買振動篩配件,以保障您的合法權益!振動篩廠家請選河南奧創機械:http://www.ypbnx.com/zxcz/20.html 24小時服務熱線:18937310551
物料直線運行方形篩專家-奧創機械 網站備案:豫ICP備16037295號-13