
側振式礦用振動篩是激振源在上面的一種振動篩,也可以做成固液分離機,我們可以為客戶提供電機轉向說明書機及設備原理,為客戶選擇合適的側振式礦用振動篩,先進的自同步振動原理,具有壽命長、噪聲低、篩分效率高等特點,適用于燒結礦、自然礦、焦炭及其它粉狀物料的一種振動篩分設備。
側振式礦用振動篩原理:
側振式礦用振動篩采用雙振動電機驅動,當兩臺振動電機做同步、反缶旋轉時,其偏心塊所產生的激振力在平行于電機軸線的方向相互抵消,在垂直于電機軸的方向疊為一合力,因此篩機的運動軌跡為一直線。其兩電機軸相對篩面有一傾角,在激振力和物料自重力的合力作用下,物料在篩面上被拋起跳躍式向前作直線運動,從而達到對物料進行篩選和分級的目的。

側振式礦用振動篩優勢:
設備可用于流水線中實現自動化作業,具有能耗低、效率高、結構簡單、易維修、全封閉結構無粉塵溢散的特點,很受消費者青睞,設備的篩分目數不大于400目,可篩分出7種不同粒度的物料,整體除篩網外幾乎無易損件,運行成本低。

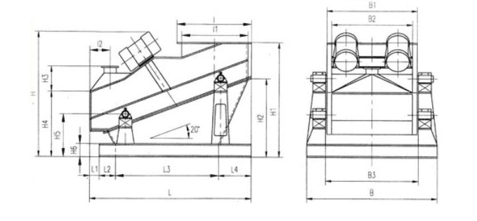
振動電機采用高性能、高壽命的TZDC系列振動電機為激振源,調節振動電機激振力的大小,可以改變篩機的振動幅。減振系統由橡膠彈簧和卡箍、支承座等組成。底架由料倉及底盤等組成。本系列振動篩的振動電機安裝方式可分為上振式和下振式,減振器安裝方式可分為座式或吊掛式。還可以根據用戶需要進行設計制造。
側振式礦用振動篩技術參數表:
針對振動電機選型來說,要根據不同的振動設備型號,選定對應的振動電機型號,如果振動電機選型過小的話,就不能達到較大的激振力,起不到對應的篩分效果,如果振動電機選型過大的話,就會造成對振動篩設備的破壞。
振動篩廠家家友情提示:請通過正規渠道購買振動篩配件,以保障您的合法權益!振動篩廠家請選河南奧創機械:http://www.ypbnx.com/zhixianshai/ 24小時服務熱線:18937310551
物料直線運行方形篩專家-奧創機械 網站備案:豫ICP備16037295號-13